医療機関専門の建築設計・施工会社として、関西・関東を中心に800余件のクリニックとお付き合いがある株式会社コンパスが、2020年4月以降に取引先のクリニックからお問い合わせいただいた100件以上の新型コロナウイルス対策”のご相談内容を大胆に仕分けました。
開業医の先輩ドクターが、どんな対策を講じられているのかを徹底解説します。


※ 数多くの製品が登場していますが、市場での第三者的な視点での実証を経ている製品はまだまだ少ないため、専門会社としては“ご提案がしづらい”一面も…
まず1位は、このご相談。
クリニックでは2020年8月現在まで集団感染の発生はありませんが、患者さまの安心や患者さまと直接コミュニケーションを取る機会の多い受付スタッフの安心面を考慮して、“目に見える対策”をされています。


対コロナのさまざまなドクターのお話を伺う中で、“コロナと付き合っていかないといけないと考えられている期間(withコロナ期間)”はさまざま。
比較的長い期間、そして次なる感染症の事も視野に入れて受付まわりの明るさや接しやすさは活かしながら、カウンター全体をシールドされるクリニックもいらっしゃいます。


受付まわりの対策としては、最もお手軽で安価に納まります。
メリットとしては、価格面(インターネット販売で1~3万円程度)、そしてお手軽さ(要らなくなったら撤去できる)という点にあり、現在インターネット販売でもいろんなサイズのアクリル板が紹介されているので、それぞれの広さに合わせた購入が可能です。
デメリットとしては、アクリル板やビニルカーテンの場合、アルコール等で消毒して継続的に使用をする際に、アルコールと反応して材料そのものが溶解したり、白化してしまったりしてしまうという点。緊急避難的な設置や、時節に合わせて設置と撤去を繰り返すのに使用する分には問題はありませんが、年単位での長期的な使用をされる場合は、劣化に合わせたこまめな買い替えも必要になります。


以前から小児科や耳鼻咽喉科では季節性インフルエンザ等の感染症予防に計画をされていることが多い、隔離室や待合室の一部を必要に応じて隔離スペースとして兼用することのできるカーテン。
どちらかというと“飛沫感染対策”の一環として設置されることが多かったですが、現在、接触感染対策も加味された、“ウイルスの不活性化を短時間で促す素材”も登場して、対コロナ対策を考えつつもこの機会に処置室のベッド廻りのカーテン等と共に、買い替えをされるケースも増えています。
※PDFが開きます。
“地域医療の確保に必要な診療を継続する医療機関への支援”の補助金対象として、患者さまが直接触られる部位を非接触ないしは、省接触材料へと変更されるケースも増えています。
以前から診察室の入口を半自動で計画されているケースは一般的ですが、弊社が標準採用している扉は、アルミ製で軽く、化粧材となるシートはアルコール・次亜塩素酸に対する消毒対応仕様となっており、もちろん棒取っ手も抗菌仕様。また半自動機構の経年摩耗も百万回検査でその耐久性を実証した製品です。
対コロナ対策の一貫としながらも、クリニックの印象を明るくリニューアルし、使い勝手も良くなる!ということで長く診療をされているクリニックからもお問い合わせが増えています。
※PDFが開きます。

上の写真はその一例になります。
(既存手洗い器の仕様により、選定材料が異なるため、必ず工事店等にご相談ください。)

主に診察室や処置室の流しに計画採用されます。自動・手動の切り替え方法が容易なため、非接触で手を洗いたいとき、器具洗い等で流しっぱなしで使いたいときなど、用途に応じて、使い分けることが可能です。
上記でご紹介した製品以外にも非接触・省接触のご相談をいただく事があります。
もっとも多いのは、“トイレ”に関する事で、主に以下のようなご相談をいただきます。
便器については、さまざまなグレードや仕様がありますが、現在はある程度中間グレードの製品から上記の仕様の選択も可能になっています。
また注意点として、診療科目によっては、患者さまの便の状況確認が必要になる科目もありますので、“自動で流れる”という機能が返って不便になることもあります。運用に応じた機能選択をご検討下さい。
またその他にも、
等のご要望があります。
“対コロナ”だけを意識されるのではなく、この際、使い勝手良く、患者さまにとっても長くメリットとなるリニューアルを考えられているクリニックがたくさんあります。
新しいクリニックを計画した際、いくつかの会社に見積を依頼したときに、意外なコスト差になってくるのが、『設備工事』です。
これは見積をした会社(又は設計事務所)が、『クリニックという用途の場所にどのような設備がどの程度のスペックで必要か』という考え方の違いが表れている部分になりますが、この考え方の違いが、“対コロナ時代”になって現れてきました。
設備の中で大きなコストを占める『空調・換気設備』。その中でも、換気設備の改善をご相談いただくケースが増えています。
実は、建築基準法上に定められる無床診療所(基準法上の用途は店舗)の場合、法的に最低このくらいは必要と考えられている換気量は、1時間あたり0.5~1回程度、区画容積内の空気が入れ替わればよい、という事になっています。
今回の新型コロナを受けて、厚生労働省が推奨している換気量というのが、ビル管理法で定めている1人あたり30㎥(立米)/時間という単位なのですが、クリニックは実際には、診察室やエックス線室、トイレといった小部屋も多いため、部屋ごとに換気計画を練らなければなりません。ちなみに室にもよりますが、上記のビル管理法に定められる換気量は、およそ1時間あたり3~5回程度、空気が入れ替わる程度の量と見なすことができます。
上記の単位(1人あたり30㎥/時間)で考えると、例えば診察室であれば、室にいる人がドクターと患者さまだけなのか(2人)、又は介添者や看護師も一緒にいるのか(3~4人)、で時間あたりの必要換気量は異なってくるのですが、弊社では、コロナ以前からビル管理法に基づく換気量程度は必要と考えていたため、建物側の容量上の制限を受けない限りは、室用途に合わせて1時間あたり3~5回の換気回数で計画をするように心掛けています。
これからクリニックの“必要な換気量”を検討していくにあたっては、この厚生労働省の指針は、クリニック設計の大きな一つの指針となると思っています。
また今回コロナの対応にあたって、『目に見えない対策』を取られる中で、弊社のお客さまからも『換気回数のお問い合わせ』を複数いただきましたが、『およそ1時間あたり3~5回』ときいてご安心をいただけたクリニック、そして患者さまにもその安心を伝えるため、待合室にその旨を掲示されていらっしゃるクリニックも多くあります。
換気回数を多くしたとき、当然、室内空気の入替量が大きくなるため、エアコンの容量も検討が必要です。エアコンの容量は、室の容積、窓等の外気温の影響を受けやすい部分の面積等によって試算が行われますが、この試算の際、そもそも1時間あたりに何回の換気回数を基準として考えるか、という点が室の排熱効率に影響を与えます。
よって換気設備を再検討するときは、空調設備と合わせての提案検討となりますが、換気設備だけで記載をすると例えば下記のような改善方法があります。

“お客さま”である患者さまに極力ニオイが流れ込まないようにすること。体温に変異がある(熱がある)患者さまの正面にエアコンの風が当たらないように考慮すること。

“感染原因”となりえる患者さまの飛沫、エアロゾルによるドクターの感染リスクを軽減すること。体温変異のある患者さまにエアコン風の影響があるレイアウトの場合は、風向調整板(後付ウェーブルーバーなど)で補完する。
この項では、“換気設備におけるコロナ対策”を記載いたしましたが、もう少し広げて、空調機器でのコロナ対策という点では、現在発布されている“地域医療の確保に必要な診療を継続する医療機関への支援”の補助金にも適応できる除菌エアコンが各メーカーから発売されていますので、ご参考いただければと思います。
新型コロナウイルスの拡大を受けて、巷には多くのウイルス対策素材が提案のテーブルに出てきています。大別すると、下記のような素材になります。
インターネット上でも多くの商材を確認することが出来ますが、新型コロナウイルスに対する治療薬やワクチンを開発するために必要な臨床試験や治験などの実証行程と同様に、これらの素材に対しても、どこの製品がどの程度の効果があり、またその効果に持続性があるのか、という実証行程が必要です。しかしながら、現在のところ、メーカーの試験結果はあっても、実際の使用ベースでの第三者的な実証例が少ないものがほとんどになります。 現在は一般的になったLED照明も実際の市場価値として用に足るスペックになるまで数年が掛かったように、これらの素材も実際の用に足るのかという面については今すぐの判断は難しく、どちらかというと『患者さまに安心してご来院をただく』、『スタッフに安心して働いてもらう』という側面効果での導入が多いのかなと感じます。
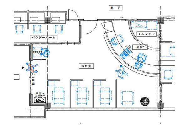
4位の素材のお問い合わせをいただくプロセスの中で、『やっぱり結局は手洗い習慣が大切』という観点に戻っていくこともしばしばあり、直近の弊社のご開業案件の設計では、下図のように待合室に手洗い設備を設置するという案件も少なからず増えてきています。
これまでは患者さまが手を洗おうと思った時、トイレの中や前室(洗面所)に手洗いがありましたが、容易かつ習慣的に手洗いを促していくという予防意識の向上効果を狙って…という面もあります。
現在は、クリニックの入口にアルコール消毒液を置かれているところが多くありますが、これからwithコロナが終息に向かっていくときに、アルコールは置いたままになるのか、終息さえすれば手洗いの習慣づけは必要なくなるものなのか、といった疑問を、医療機関が予防意識の向上に向けて働きかけていくという点で、明るい発想だと感じます。

